NHÀ KHÁCH BỘ CHỈ HUY QUÂN SỰ TỈNH LẠNG SƠN

  • Chi tiết dự án

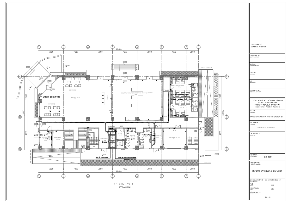
    Dự án: Nhà khách Bộ chỉ huy quân sự tỉnh Lạng Sơn

    Chủ đầu tư: Quân khu 1

    Khách hàng: Công ty CP Tư vấn xây dựng Sơn Hà

    Địa điểm xây dựng: Phường Lương Văn Trị, tỉnh Lạng Sơn


    Nội dung công việc:

    • Tư vấn thiết kế hệ thống điện, điện nhẹ
    • Tư vấn thiết kế hệ thống cấp thoát nước
    • Tư vấn thiết kế hệ thống điều hòa thông gió

    Quy mô dự án:

    Tổng diện tích 8.800m2 bao gồm 1 tầng hầm, 7 tầng nổi, 1 tầng tum

    Dự án liên quan